The ELM♥️

1764965963775 1764965965284 1764965966558 1764965967822 1764965969094 1764965970966 1764965972301 1764965973634 1764965974966 1764965976262 1764965977537 1764965978867 1764965980128 1764965981414 1764965982669 1764965997745 1764965999119 1764966000541 1764966002436 1764966005257
The ELM♥️
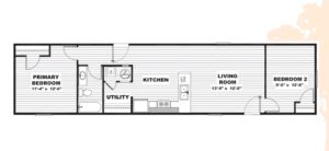
Area Size
784
Bedrooms
2
Bathrooms
1

The Elm ♥️

2 Bed • 1 Bath

Size: 14x56

 

Includes:

• OSB Wrapped

• Black Appliance Package

• E-Built Low Energy Package

 

Special Price: $37,900

Down Payment: $2,000

Financing and Rent-to-Own Available

Reserve Home