The Finch

SnapInsta SnapInsta SnapInsta SnapInsta SnapInsta SnapInsta SnapInsta SnapInsta SnapInsta SnapInsta download (4)
The Finch
Area Size
399
Bedrooms
2
Bathrooms
1

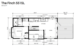
The “Finch” — 399 sq ft Park Model Tiny Home (Reimagined)

This beautifully redesigned tiny home features two bedrooms plus a spacious loft.

 

The master bedroom comfortably fits a queen-size bed.

 

A separate bunkroom includes built-in bunks, perfect for guests or kids.

 

The large loft adds even more room for storage or additional sleeping space.

 

 

Crafted with hickory-stained Southern Yellow Pine throughout the interior and split log siding on the exterior, this cabin blends rustic charm with modern appeal. The black roof and matching black trim give it a trendy yet timeless look.

 

Price: $51,000

Down Payment: $4,000

Financing and Rent-to-Own Options Available

 

Reserve Home